Ford Crown Victoria The crown victoria, the choice of police forces all over the United States due to its size and available V8 engine

overcharging 2004 cvlx

Thread Tools
 
Search this Thread
 
Old Sep 4, 2025 | 07:28 PM
  #1  
l33m4ng0's Avatar
Thread Starter
|
Junior Member
Joined: Sep 2025
Posts: 1
Default overcharging 2004 cvlx

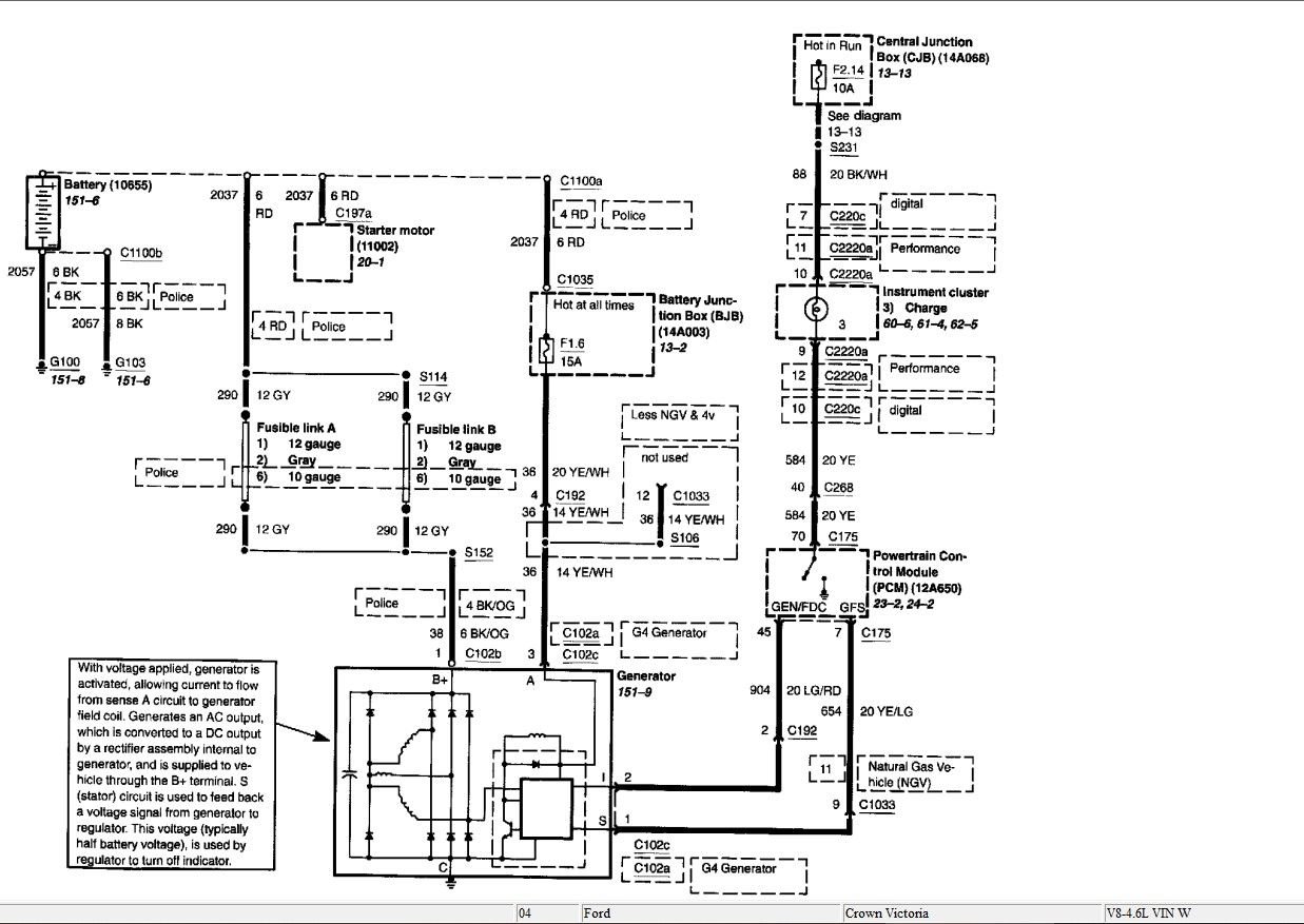
Hello. Recently, my car started overcharging like crazy (17-19v), so I replaced the alternator (totalpro brand 135amp) since my battery tested just fine. After replacing, it still overcharged, so I figured it was the pcm. I ordered and installed the new pcm (flagship1) and got my keys reprogrammed perfectly. After this, it is still over charging. I double checked the visible wires and then went back to the alternator wiring. I doesn't overcharge when lg/rd (generator field control output) and ye/wh (voltage supplied at all times) are connected to the harness, but goes crazy again overcharging when I hook ye/lg (generator field signal monitor) up. It runs perfectly fine when I have just those 2 wires connected to the alternator and pcm. Any ideas? I'll include the diagrams below. Is there any chance I've got the wires mixed up or maybe something is wrong with my newly programmed pcm? Not sure, thanks for any help.
this is what my old alternator had for the wires.
this is what my old alternator had for the wires.
this is what the new alternator had that I spliced.
this is what the new alternator had that I spliced.
 
Old Sep 4, 2025 | 10:21 PM
  #2  
heiko's Avatar
Senior Member
Joined: Feb 2024
Posts: 1,242
From: California
Default








Even if you don't get P1246 check Test-HY.pdf below. Pinpoint C shown above, if you need to see others check Pinpoint-ALL.pdf below.
You said you switched to totalpro brand 135amp, how do you know it's made for 6G and not 4G? They are not interchangeable when you switched from 4G to 6G. You said you installed and programmed a new PCM are you sure it can communicate with 6G alternator? If so, then your totalpro is probably made for 4G. You said you spliced and converted the C102A (4G) to C102C (6G), how do you know the splicing are good and why didn't you buy the 4G to 6G conversion harness or just depin the 4G and switch that to a 6G connector? From what I see thus far, doesn't matter you have 4G or 6G, your totalpro just can't communicate with your PCM causing the overcharging.
 
Attached Files
File Type: pdf
Test-HY.pdf (160.1 KB, 30 views)
File Type: pdf
Pinpoint-ALL.pdf (222.9 KB, 21 views)

Last edited by heiko; Sep 5, 2025 at 10:57 PM.
Old Sep 5, 2025 | 11:47 PM
  #3  
heiko's Avatar
Senior Member
Joined: Feb 2024
Posts: 1,242
From: California
Default


Above diagram shows a 2005 that came with a 6G alternator you can compare with your 2004's 4G.
One more thing, you have digital or analog instrument cluster and how do you know it was overcharging? Did you see light show on the cluster? Red battery indicator turned on too? Next time you see it's overcharging can you pop the hood and check your battery voltage with a voltmeter and verify?
 

Last edited by heiko; Sep 6, 2025 at 07:43 AM.
Old Sep 6, 2025 | 03:57 PM
  #4  
hanky's Avatar
Senior Member
Joined: Jun 2010
Posts: 16,607
Default

There are some points in your post that are not clear..

Why did you change the wiring that caused you to think they might be mixed up?
Need to know exactly everything you did, everything in detail !

Usually when an alternator gets replaced it works, but something is not right here
.We know what tests to run, but they are no good if wires may have been switched.
Was the battery replaced at the time some of these problems came up ?
 
Related Topics
Thread
Thread Starter
Forum
Replies
Last Post
Mateoh
Ford Crown Victoria
4
Nov 15, 2021 06:50 AM
bluzzer
Ford F-250 & Ford F-350
4
Dec 13, 2018 08:56 AM
Diggs5646
Ford F-150
1
Apr 28, 2018 11:41 AM
MoonTimber
Ford Econoline E Series
1
Apr 15, 2015 04:03 PM
slacker
Ford Focus
8
Aug 31, 2013 06:18 PM




All times are GMT -5. The time now is 05:20 AM.